5 Zimmer, Küche und 2 Bäder in Ruhiglage...
Objektinformationen
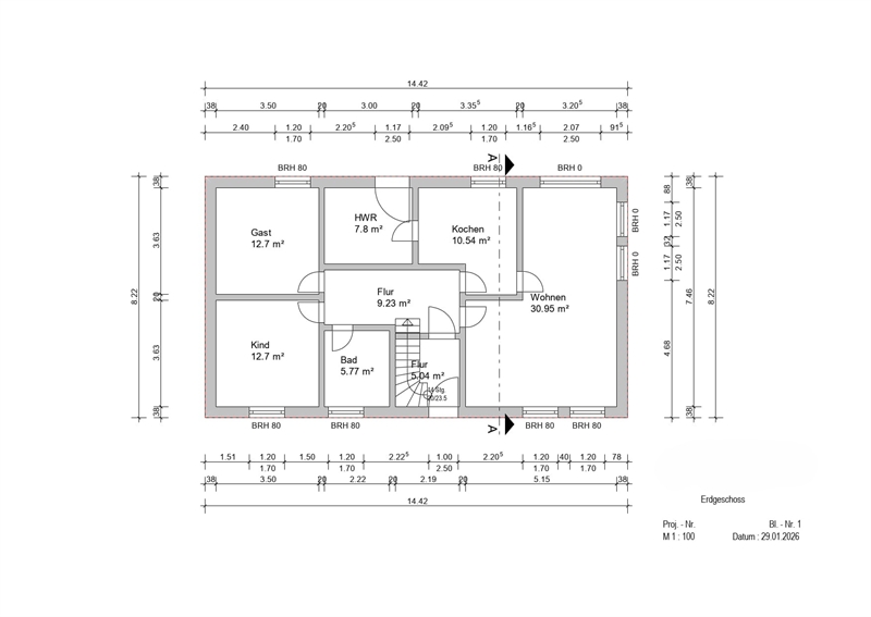
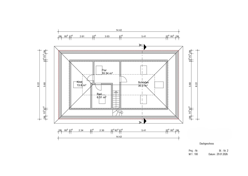
Wohnfläche ca.:
133,81 m²
Grundstück:
1'193,00 m²
Zimmer:
5,0
Schlafzimmer:
2
Badezimmer:
2
Balkone:
1
Wohn- / Schlafzimmer:
5
Stellplätze:
1
Verwaltungsdaten
Externe Nummer
BRB 143
Ausstattung
Ausstattung
STANDARD
Einbauküche
✓
Zentralheizung
✓
Gasbefeuerung
✓
Gartennutzung
✓
Kabel / Sat / TV Empfang
✓
Zustand
Baujahr:
1986
letzte Modernisierung
2025
Zustand:
Erstbezug
Energiepass
Energiepass Art:
Verbrauch
gültig bis:
11-2035
Verbrauchkennwert:
138.8 kWh/(m²a)
mit Warmwasser
✓
Primärenergieträger:
GAS
Energiekw.-W�rme:
138,8 kWh/(m²a)
Energieeffizienzklasse:
E
Ausstelldatum:
07.11.2025
Jahrgang:
2014
Verwaltung
Objektbeschreibung
In der schönen Stadt Genthin, unweit des Stadtkanals, erwartet Sie ein gepflegtes Einfamilienhaus in attraktiver Lage – ideal für alle, die stadtnah wohnen und gleichzeitig Ruhe genießen möchten.
Genthin verbindet Geschichte, Kultur und eine gute Infrastruktur auf angenehme Weise. Die Stadt bietet eine solide Anbindung an umliegende Regionen, vielfältige Freizeitmöglichkeiten sowie eine lebendige Gemeinschaft. Hier wohnen Sie in einem Umfeld, das Alltagstauglichkeit und Lebensqualität miteinander verbindet.
Das im Jahr 1986 errichtete Einfamilienhaus im Bungalow-Stil bietet ca. 130 m² Wohnfläche und überzeugt durch eine helle, angenehme Raumaufteilung.
Besonders hervorzuheben ist die 2025 vorgenommene Kernsanierung des Hauses von Dach bis Fuß. Dabei wurden unter anderem folgende Arbeiten durchgeführt:
Dach neu gedeckt
Heizung erneuert
Bäder modernisiert
Böden erneuert
Wände frisch gestrichen
Wärmedämmung an der Gebäudehülle
neuer Putz
Fassade erneuert
Damit präsentiert sich die Immobilie in einem sehr gepflegten und zeitgemäßen Zustand.
Ein weiteres Highlight ist das großzügige Grundstück mit fast 1.200 Quadratmeter. Es bietet viel Platz für Garten, Erholung und individuelle Gestaltungsideen. Und falls Ihnen die Fläche zu groß erscheint: Für das Grundstück liegt bereits eine positive Bauvoranfrage für ein weiteres Wohnhaus vor – eine attraktive Perspektive für Eigennutzer, Investoren oder Familien mit Zukunftsplänen.
Die Nähe zum Stadtkanal verleiht dem Anwesen zusätzlichen Charme und macht die Lage besonders reizvoll.
Abgerundet wird das Angebot durch eine Einbauküche im Landhausstil, die noch eingebaut wird und das Wohnkonzept harmonisch ergänzt.
Gern stellen wir Ihnen diese besondere Immobilie im Rahmen einer persönlichen Besichtigung vor. Vereinbaren Sie jetzt Ihren Termin unter 03381 - 2822472.
Genthin verbindet Geschichte, Kultur und eine gute Infrastruktur auf angenehme Weise. Die Stadt bietet eine solide Anbindung an umliegende Regionen, vielfältige Freizeitmöglichkeiten sowie eine lebendige Gemeinschaft. Hier wohnen Sie in einem Umfeld, das Alltagstauglichkeit und Lebensqualität miteinander verbindet.
Das im Jahr 1986 errichtete Einfamilienhaus im Bungalow-Stil bietet ca. 130 m² Wohnfläche und überzeugt durch eine helle, angenehme Raumaufteilung.
Besonders hervorzuheben ist die 2025 vorgenommene Kernsanierung des Hauses von Dach bis Fuß. Dabei wurden unter anderem folgende Arbeiten durchgeführt:
Dach neu gedeckt
Heizung erneuert
Bäder modernisiert
Böden erneuert
Wände frisch gestrichen
Wärmedämmung an der Gebäudehülle
neuer Putz
Fassade erneuert
Damit präsentiert sich die Immobilie in einem sehr gepflegten und zeitgemäßen Zustand.
Ein weiteres Highlight ist das großzügige Grundstück mit fast 1.200 Quadratmeter. Es bietet viel Platz für Garten, Erholung und individuelle Gestaltungsideen. Und falls Ihnen die Fläche zu groß erscheint: Für das Grundstück liegt bereits eine positive Bauvoranfrage für ein weiteres Wohnhaus vor – eine attraktive Perspektive für Eigennutzer, Investoren oder Familien mit Zukunftsplänen.
Die Nähe zum Stadtkanal verleiht dem Anwesen zusätzlichen Charme und macht die Lage besonders reizvoll.
Abgerundet wird das Angebot durch eine Einbauküche im Landhausstil, die noch eingebaut wird und das Wohnkonzept harmonisch ergänzt.
Gern stellen wir Ihnen diese besondere Immobilie im Rahmen einer persönlichen Besichtigung vor. Vereinbaren Sie jetzt Ihren Termin unter 03381 - 2822472.
Lage
Genthin, gelegen im Herzen von Sachsen-Anhalt, ist eine Stadt, die Tradition und Moderne perfekt miteinander verbindet. Mit ihrer reichen Geschichte, die in den malerischen Straßen und historischen Gebäuden zum Leben erweckt wird, bietet Genthin eine Atmosphäre, die sowohl einladend als auch faszinierend ist.
Die Stadt ist umgeben von einer atemberaubenden Naturlandschaft, die zu ausgedehnten Spaziergängen, Radtouren und Erkundungstouren einlädt. Die Elbe fließt in der Nähe und bietet eine malerische Kulisse für alle, die die Ruhe am Wasser genießen möchten.
Genthin ist nicht nur ein Ort der Geschichte und Natur, sondern auch ein Ort des Zusammenkommens. Mit einer Vielzahl von kulturellen Veranstaltungen, Festivals und lokalen Märkten gibt es immer etwas zu erleben. Die Gemeinschaft ist herzlich und einladend, und neue Bewohner werden schnell Teil dieser eng verbundenen Gemeinschaft.
Die Infrastruktur der Stadt ist hervorragend ausgebaut. Mit guten Verkehrsanbindungen, modernen Einrichtungen und einer Vielzahl von Einkaufsmöglichkeiten und Restaurants bietet Genthin alles, was man für ein komfortables Leben benötigt.
Für Familien gibt es zahlreiche Bildungseinrichtungen und Freizeitmöglichkeiten, die sicherstellen, dass die jüngsten Bewohner bestens versorgt sind. Und für diejenigen, die nach einem ruhigen Ort suchen, um sich niederzulassen, bietet Genthin eine friedliche Umgebung, die dennoch alle Annehmlichkeiten des modernen Lebens bietet.
Kommen Sie nach Genthin und entdecken Sie selbst, warum so viele Menschen stolz darauf sind, diesen wunderbaren Ort ihr Zuhause zu nennen.
Die Stadt ist umgeben von einer atemberaubenden Naturlandschaft, die zu ausgedehnten Spaziergängen, Radtouren und Erkundungstouren einlädt. Die Elbe fließt in der Nähe und bietet eine malerische Kulisse für alle, die die Ruhe am Wasser genießen möchten.
Genthin ist nicht nur ein Ort der Geschichte und Natur, sondern auch ein Ort des Zusammenkommens. Mit einer Vielzahl von kulturellen Veranstaltungen, Festivals und lokalen Märkten gibt es immer etwas zu erleben. Die Gemeinschaft ist herzlich und einladend, und neue Bewohner werden schnell Teil dieser eng verbundenen Gemeinschaft.
Die Infrastruktur der Stadt ist hervorragend ausgebaut. Mit guten Verkehrsanbindungen, modernen Einrichtungen und einer Vielzahl von Einkaufsmöglichkeiten und Restaurants bietet Genthin alles, was man für ein komfortables Leben benötigt.
Für Familien gibt es zahlreiche Bildungseinrichtungen und Freizeitmöglichkeiten, die sicherstellen, dass die jüngsten Bewohner bestens versorgt sind. Und für diejenigen, die nach einem ruhigen Ort suchen, um sich niederzulassen, bietet Genthin eine friedliche Umgebung, die dennoch alle Annehmlichkeiten des modernen Lebens bietet.
Kommen Sie nach Genthin und entdecken Sie selbst, warum so viele Menschen stolz darauf sind, diesen wunderbaren Ort ihr Zuhause zu nennen.
Ausstattung
KFZ-Stellplatz, Terrasse, 2 Bäder
sonstige Angaben
Dieses Exposé wurde für Sie nach bestem Wissen erstellt. Grundlage der vorstehenden Angaben sind Informationen und/oder Unterlagen, die uns seitens des Eigentümers oder Dritter zur Verfügung gestellt wurden. Auf Wunsch übersenden wir Ihnen weitere Unterlagen. Für die Richtigkeit und Vollständigkeit der Angaben übernehmen wir keine Gewähr.
Hinweis zum Geldwäschegesetz:
Als Immobilienmaklerunternehmen ist die STYN Immobilien GmbH nach § 2 Abs. 1 Nr. 14 und § 11 Abs. 1, 2 Geldwäschegesetz (GwG) verpflichtet, die Identität des Vertragspartners festzustellen und zu überprüfen, sobald ein ernsthaftes Interesse am Kauf einer Immobilie besteht. Daher ist es erforderlich, dass wir nach § 11 Abs. 4 Geldwäschegesetz (GwG) die Angaben Ihres Personalausweises bzw. Reisepasses festhalten (bei natürlichen Personen). Bei juristischen Personen benötigen wir eine Kopie des Handelsregisterauszugs, aus dem ersichtlich ist, wer der wirtschaftlich Berechtigte ist. Wir sind dazu verpflichtet, die Unterlagen fünf Jahre aufzubewahren. Als Vertragspartner haben Sie eine Mitwirkungspflicht nach § 11 Abs. 6 GwG.
Der Maklervertrag mit uns und/oder unseren Beauftragten kommt durch die schriftliche Vereinbarung oder durch die Inanspruchnahme unserer Maklertätigkeit auf der Basis des Objekt-Exposés und seiner Bedingungen zustande. Die Käufercourtage in Höhe von 2,38% auf den Kaufpreis einschließlich gesetzlicher Mehrwertsteuer ist bei notariellem Vertragsschluss verdient und fällig. Eine gleichlautende Vereinbarung in Form eines provisionspflichtigen Maklervertrages haben wir mit dem Verkäufer in gleicher Höhe abgeschlossen. Die Höhe der Bruttocourtage unterliegt einer Anpassung bei Steuersatzänderung. Wir und ggf. unsere Beauftragten erhalten einen unmittelbaren Zahlungsanspruch gegenüber dem Käufer (Vertrag zugunsten Dritter, § 328 BGB). Grunderwerbssteuer, Notar- und Gerichtskosten trägt der Käufer.
Die Erstellung eines Energieausweises ist beauftragt und wird zur Besichtigung bzw. notariellen Beurkundung vorgelegt.
Hinweis zum Geldwäschegesetz:
Als Immobilienmaklerunternehmen ist die STYN Immobilien GmbH nach § 2 Abs. 1 Nr. 14 und § 11 Abs. 1, 2 Geldwäschegesetz (GwG) verpflichtet, die Identität des Vertragspartners festzustellen und zu überprüfen, sobald ein ernsthaftes Interesse am Kauf einer Immobilie besteht. Daher ist es erforderlich, dass wir nach § 11 Abs. 4 Geldwäschegesetz (GwG) die Angaben Ihres Personalausweises bzw. Reisepasses festhalten (bei natürlichen Personen). Bei juristischen Personen benötigen wir eine Kopie des Handelsregisterauszugs, aus dem ersichtlich ist, wer der wirtschaftlich Berechtigte ist. Wir sind dazu verpflichtet, die Unterlagen fünf Jahre aufzubewahren. Als Vertragspartner haben Sie eine Mitwirkungspflicht nach § 11 Abs. 6 GwG.
Der Maklervertrag mit uns und/oder unseren Beauftragten kommt durch die schriftliche Vereinbarung oder durch die Inanspruchnahme unserer Maklertätigkeit auf der Basis des Objekt-Exposés und seiner Bedingungen zustande. Die Käufercourtage in Höhe von 2,38% auf den Kaufpreis einschließlich gesetzlicher Mehrwertsteuer ist bei notariellem Vertragsschluss verdient und fällig. Eine gleichlautende Vereinbarung in Form eines provisionspflichtigen Maklervertrages haben wir mit dem Verkäufer in gleicher Höhe abgeschlossen. Die Höhe der Bruttocourtage unterliegt einer Anpassung bei Steuersatzänderung. Wir und ggf. unsere Beauftragten erhalten einen unmittelbaren Zahlungsanspruch gegenüber dem Käufer (Vertrag zugunsten Dritter, § 328 BGB). Grunderwerbssteuer, Notar- und Gerichtskosten trägt der Käufer.
Die Erstellung eines Energieausweises ist beauftragt und wird zur Besichtigung bzw. notariellen Beurkundung vorgelegt.






